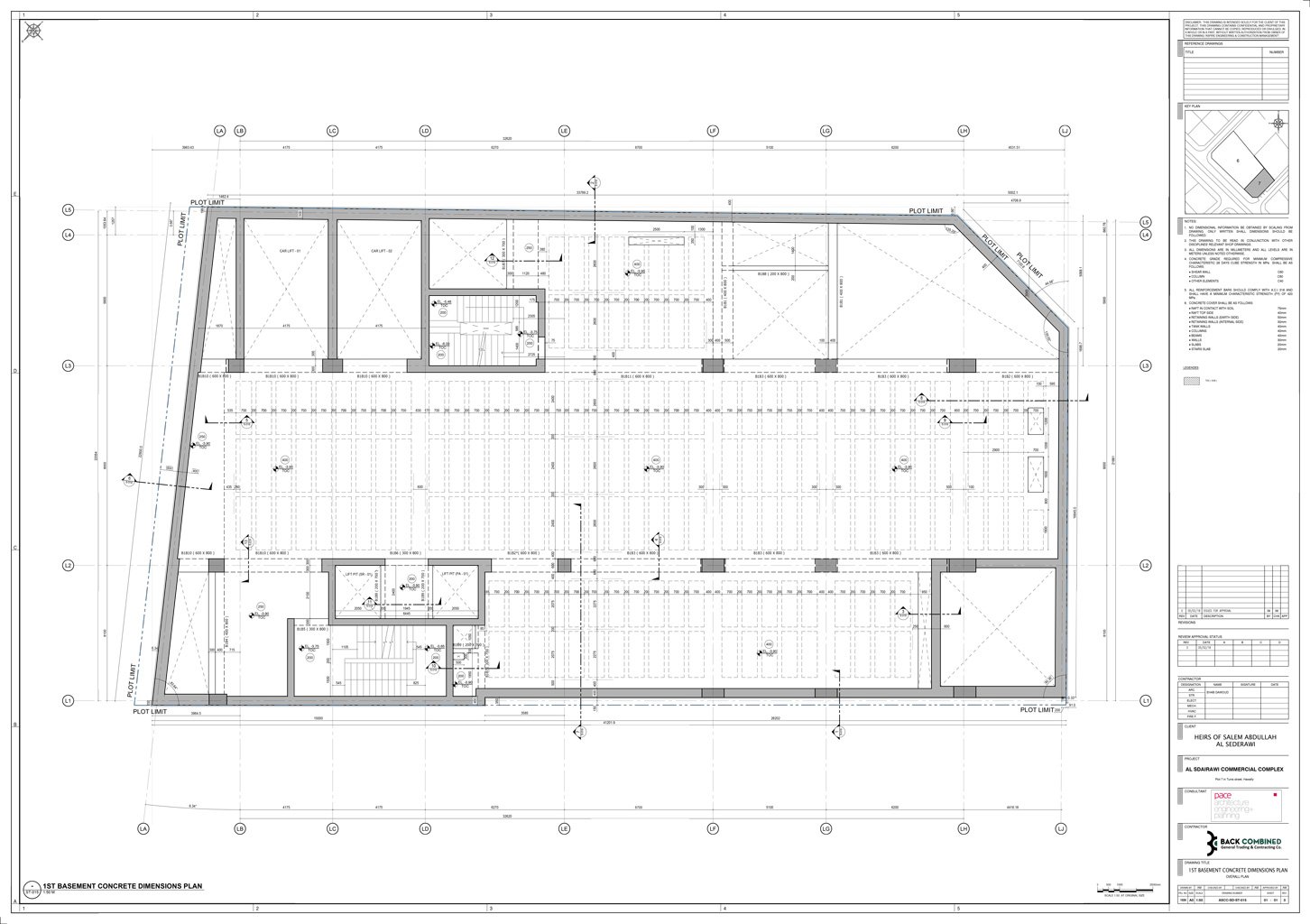
Al Sdairawi Commercial Complex

Hawally, Kuwait
BCC Contracting
Structural design, Structural and architectural workshop drawings

Commercial complex consists of three Basements + 6 stories building for shopping and offices

Related Projects: